Giga-location , vacances de groupe en France

Photo suivantePhoto précédentevacances en groupe HAUTE-NORMANDIElogement de groupe HAUTE-NORMANDIEgrand gite La Fabrik du Bon\'Eurelocation HAUTE-NORMANDIEgite en groupe Euregrande capacité HAUTE-NORMANDIEvacances de groupe HAUTE-NORMANDIElocation de groupe Gite, Gite de luxe, Gite insolitegite france La Fabrik du Bon\'Eurehébergement La Fabrik du Bon\'Euregite france Euregite en groupe Gite, Gite de luxe, Gite insolitelocation de vacances Eurevacances de groupe AUTHEUIL-AUTHOUILLETgite france HAUTE-NORMANDIE
voir toute la galerie

La Fabrik du Bon\'Eure

Gite, Gite de luxe, Gite insolite

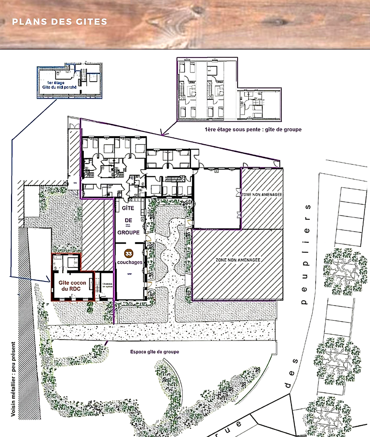
7 rue des Peupliers
27490 AUTHEUIL-AUTHOUILLET
39 personnes ● 18 chambres
Formule de location : Gestion libre, Demi-pension, Pension complète
Référence annonce : GL1437

Propriétaire

Tél. : 07.63.41.93.19
www.lafabrikduboneure.com/


Description

La Fabrik du Bon'Eure est un gîte de groupe moderne et spacieux situé au cœur de la vallée de l'Eure, au pied de la rivière et à une heure de Paris, entre Vernon Giverny et Evreux. Il s'agit d'une ancienne usine rénovée pour offrir une expérience unique à ses visiteurs en pleine campagne, dans un cadre verdoyant. Avec ses 550 m² de surface habitable, un patio de 150 m² végétalisé et un jardin de 2000 m², la Fabrik du Bon'Eure offre tout le confort nécessaire tout en conservant une ambiance chaleureuse et moderne.

La salle à manger / séjour de 130 m² et son salon / salle de jeux de 100 m² permettent de recevoir jusqu'à 50 personnes et sont équipés d'une sono, d'un micro et d'un vidéo-projecteur, facilitant ainsi l'organisation de divers événements tels que des séminaires professionnels, des baptêmes, des cousinades, des formations bien-être ou des fêtes d'anniversaire. Les poêles à bois du salon et de la salle à manger offrent une ambiance conviviale et chaleureuse dans ce toit cathédrale de 5 mètres de hauteur.

Avec un total de 18 chambres, dont 3 chambres triple, 6 chambres doubles et 9 de 2 lits simples (dont 2 accessibles aux personnes à mobilité réduite), la Fabrik du Bon'Eure est un lieu idéal pour passer des moments privilégiés et magiques en famille ou entre amis. Que ce soit pour se divertir ou se ressourcer, la Fabrik du Bon'Eure offre un cadre parfait pour petits et grands. Venez profiter de cette expérience unique dans la campagne normande et laissez-vous charmer par ce lieu exceptionnel.

Ville(s) à proximité de AUTHEUIL-AUTHOUILLET

Entre Evreux, Pacy-sur-Eure et Vernon Giverny, à 1h de Paris.

Site(s) touristique(s) à proximité de AUTHEUIL-AUTHOUILLET

Giverny, Cathédrale d'Evreux, Château de Bizy, les Andelys...


Confort / Commodités

Accès handicapéAccès internetBarbecueCheminéeCongélateurEquipement bébéEquipement HifiFer à repasserLave lingeLave vaisselleLecteur DVDMicro-ondeParking privéSalle de réceptionSalon de jardinSaunaSèche cheveuxTerrasseTV


Détail des pièces

4 pièce(s) de vie3 cuisine(s)18 chambre(s)11 salle(s) d'eau13 WC6 lits doubles24 lits simples

Equipements de loisir

Baby-footBillardJeux d'enfantsPing-pong


Salle de réception


Warning: Undefined variable $alt in /var/www/vhosts/giga-location.com/httpdocs/manager/salle.php on line 145

Warning: Undefined variable $alt in /var/www/vhosts/giga-location.com/httpdocs/manager/salle.php on line 145

Warning: Undefined variable $alt in /var/www/vhosts/giga-location.com/httpdocs/manager/salle.php on line 145

Warning: Undefined variable $alt in /var/www/vhosts/giga-location.com/httpdocs/manager/salle.php on line 145

Warning: Undefined variable $alt in /var/www/vhosts/giga-location.com/httpdocs/manager/salle.php on line 145

La salle : La Fabrik du Bon'Eure

40 places assises   -  90 places debout   -  130 m2   -  

Les types d'événements

MariageAnniversaireRéceptionConférenceMeetingSéminairesSpectacleConcert

Equipements de la salle

Cuisine équipéeTablesChaisesVaisselleAccès InternetÉquipement hifiÉquipement jeux de lumièreVidéoprojecteurParking privéAccessible handicapéJardin


Prix / tarifs de l'hébergement

SemaineWeek-endNuitée
Très haute saison45002904 -
Haute saison45002904 -
Moyenne saison45002904 -
Basse saison45002904 -

Méthode de paiement accepté :
ChèqueVirementEspèce

Taxe de séjour : inclus

Location des draps : inclus

Ménage fin de séjour : inclus

Assurance séjour:


Situé en HAUTE-NORMANDIE Eure

Location située en Campagne


Contactez le propriétaire


Propriétaire

07.63.41.93.19
www.lafabrikduboneure.com/

Logo de l'annuaire des grands gites de France
Trouvez votre hébergement de groupe

 
 
Accès compte Facebook giga-location Accès compte Instagram

Mentions Légales

Sécurité du site Web